2d cad drawing of the description of functional area autocad software
Description
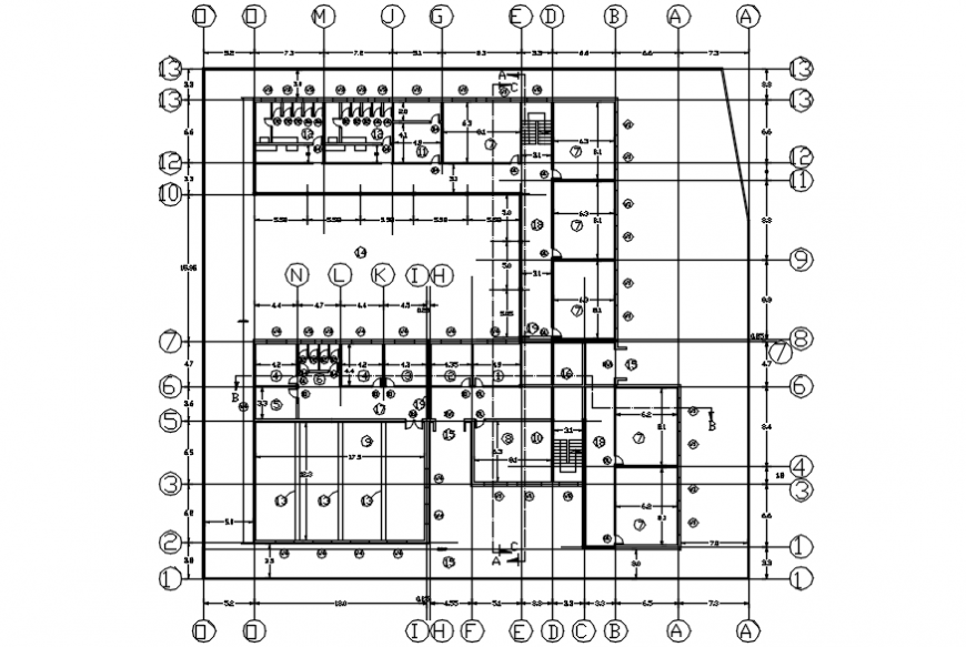
2d cad drawing of the description of functional area autocad software with basic needs in primary school been detailed in the legend with the allotted area for classroom and other activity rooms and other areas been given with dimensions.
Uploaded by:
Eiz
Luna

