All floors cover plan structure details of apartment building dwg file
Description
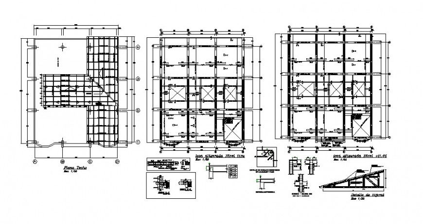
All floors cover plan structure details of apartment building that includes a detailed view of wood posts with Grider pre-engineering, steel pipe column and play joints, existing floor joints, knee wall details provided. Steel pipe column with beam schedule details, dimensions details, measures and much more of structure details.
Uploaded by:
Eiz
Luna

