Drawings of housing apartment 2d view plan autocad software file
Description
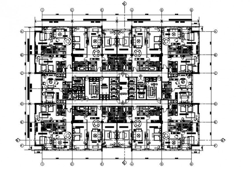
Drawings of housing apartment 2d view plan autocad software file that shows house floor plan details with furniture layout details in the house along with dimension hidden line details. Staircase details and door window blocks details with various other details of the house also shown in drawings.
Uploaded by:
Eiz
Luna

