2d view construction units block details dwg autocad file
Description
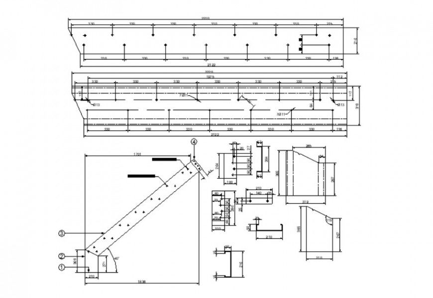
2d view construction units block details dwg autocad file that shows dimension hidden line details along with welded bolted joints and connections details. Curve Angle detail and other details also included in drawings.
File Type:
DWG
File Size:
124 KB
Category::
Construction
Sub Category::
Construction Detail Drawings
type:
Gold
Uploaded by:
Eiz
Luna

