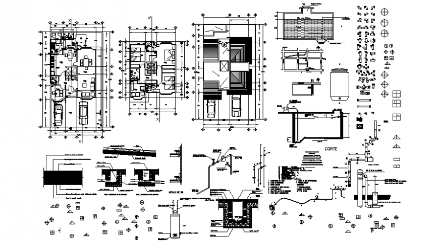
2d drawings of house layout floor detailing plan autocad software file
Description
2d drawings of house layout floor plan autocad software file that shows work plan of the house along with furniture layout details in the house and floor level details. Dimension hidden line details with room details of drawings room bedroom kitchen and dining area also included in drawings.
Uploaded by:
Eiz
Luna

