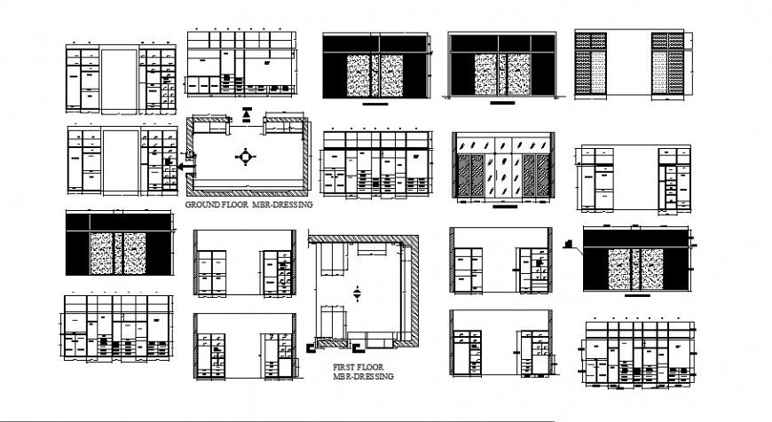
Wardrobe elevation, section, plan and carpentry details for bedroom dwg file
Description
Wardrobe elevation, section, plan and carpentry details for bedroom that includes a detailed view of wardrobe elevation details, section details, plan details etc with door details, draweer details, car pantry details, colors details, size details, type details etc for multi purpose uses for cad projects.
Uploaded by:
Eiz
Luna

