2d view of housing units floor plan details autocad software file
Description
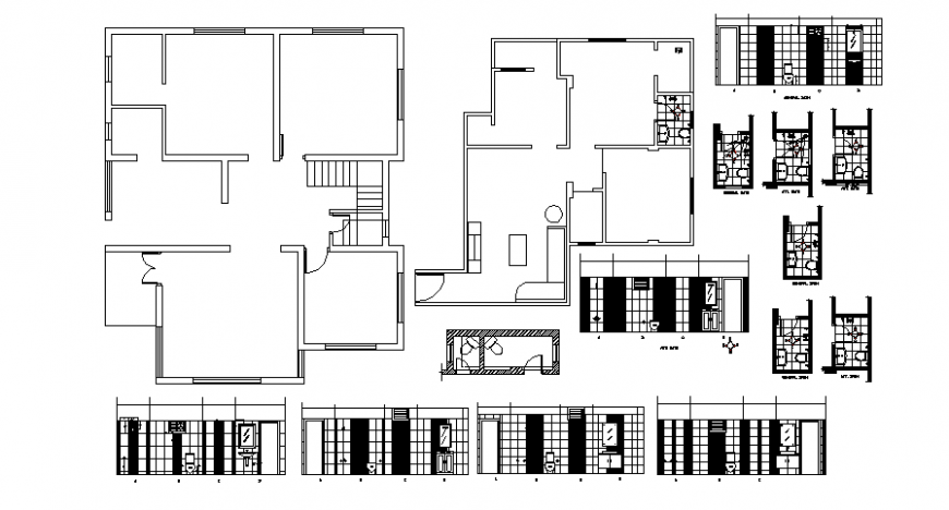
2d view of housing units floor plan details autocad software file that shows work plan of house drawings with room details of drawings room bedroom area kitchen and dining area along with sanitary toilet and bathroom details also included in drawings. Sanitary toilet area plan with sanitary blocks details also included in drawings.
Uploaded by:
Eiz
Luna

