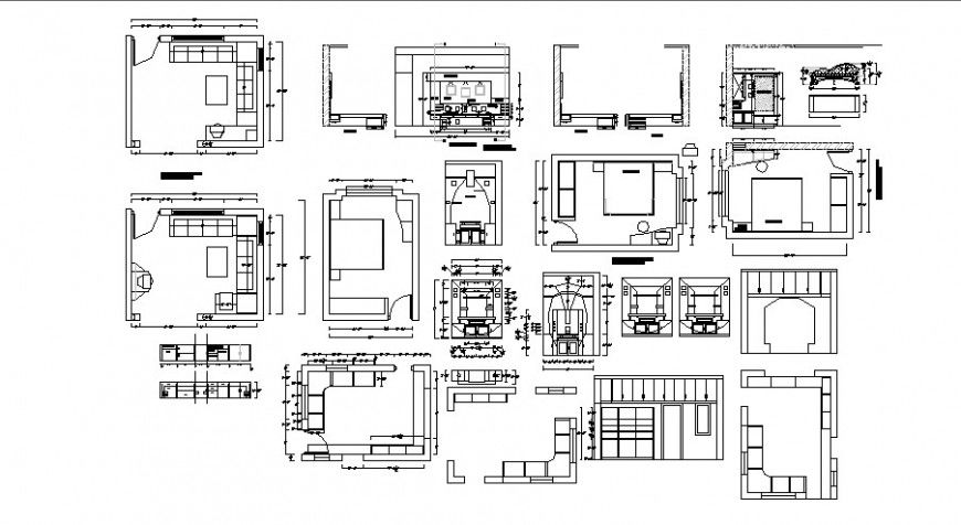
Multiple bedroom and drawing room plan and furniture details for house dwg file
Description
Multiple bedroom and drawing room plan and furniture details for house that include a detailed view of the bedroom elevation and sectional details with furniture block like a double bed, side table, bathroom details, doors and windows details with carpentry details, dimensions and decorative equipment details and much more of house details.
Uploaded by:
Eiz
Luna

