Metal Folding Door
Description
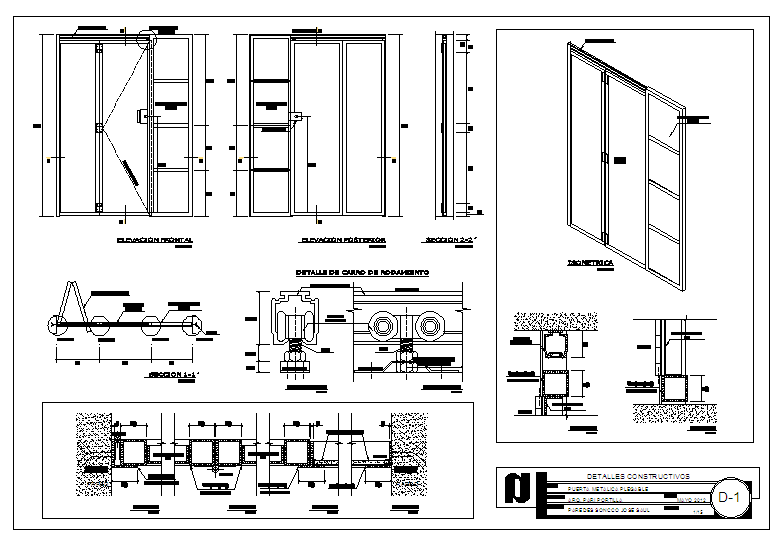
Metal Folding Door DWG file, Metal Folding Door Detail, Metal Folding Door Download file
File Type:
DWG
File Size:
107 KB
Category::
Dwg Cad Blocks
Sub Category::
Windows And Doors Dwg Blocks
type:
Gold

Uploaded by:
Jafania
Waxy

