Apartment floor layout plan and framing plan structure cad drawing details dwg file
Description
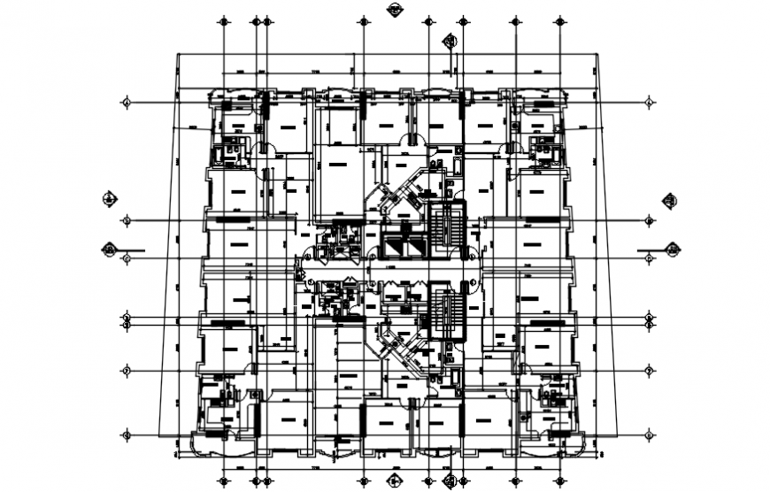
Apartment floor layout plan and framing plan structure cad drawing details that includes a detailed view of ground, first etc with car parking area, garden area with main entry house door, drawing room and living room with family hall details kitchen and dining area, indoor staircases and laundry area and balcony, details and bedroom or master bedroom with wood posts with Grider pre-engineering, steel pipe column and play joints, existing floor joints, knee wall details provided and much more of apartment building details.
Uploaded by:
Eiz
Luna

