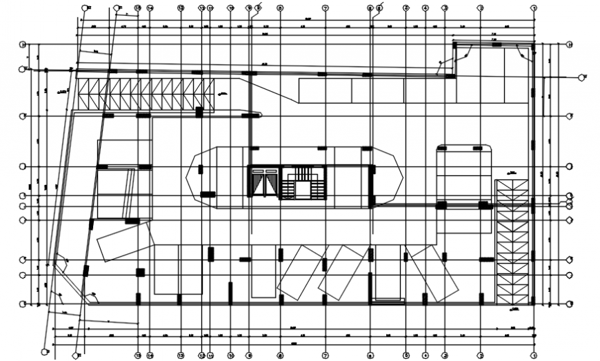
Basement parking floor layout plan drawing details of apartment building dwg file
Description
Basement parking floor layout plan drawing details of apartment building that includes road view indoor roads and symbols, parking space and much more of parking floor details.
Uploaded by:
Eiz
Luna

