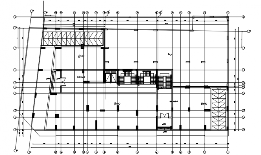
Basement floor layout plan drawing details with apartment building dwg file
Description
Basement floor layout plan drawing details with apartment building that includes road view indoor roads and symbols, parking space and much more of parking floor details.
Uploaded by:
Eiz
Luna
