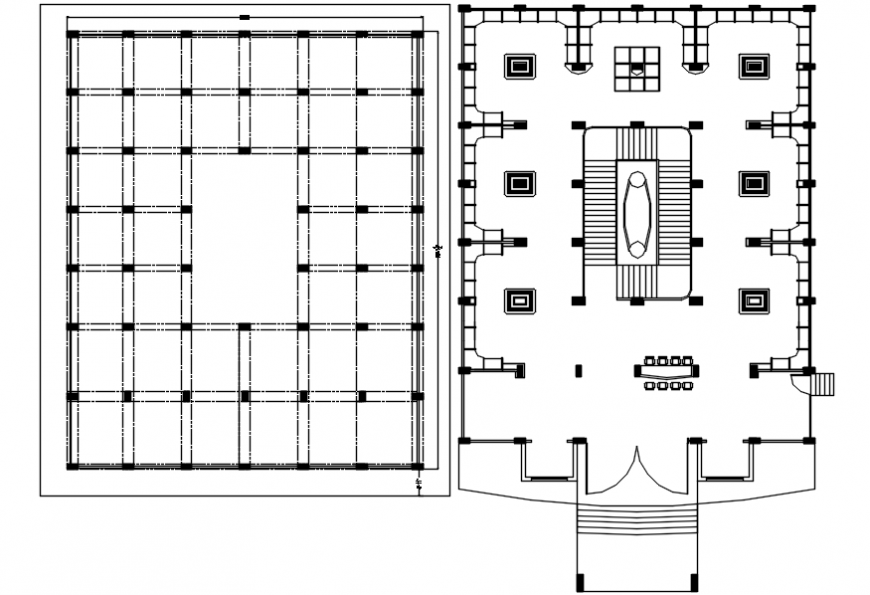
Foundation plan and layout plan structure details for restaurant dining hall dwg file
Description
Foundation plan and layout plan structure details for restaurant dining hall here you cad found a free auto-cad file with the foundation with side typical shoe & typical central shoe with columns and foundations shoes, cistern tank and walls of concrete arm beams flat and pearled beams with reception area with waiting lounge, dining area with banquet hall and kitchen and cleaning department details and staff room and sanitary facilities provides with furniture details with interior details and much more of restaurant project with free download auto-cad file.
Uploaded by:
Eiz
Luna

