Ticket printer elevation and section cad drawing details dwg file
Description
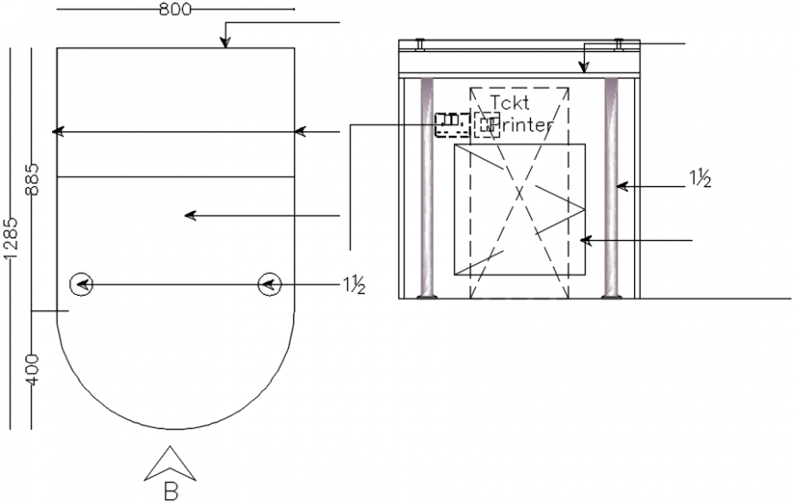
Ticket printer elevation and section cad drawing details that include a detailed view of ticket printer elevation, section etc with colours details and size details, type details etc for multi-purpose uses for cad projects.
Uploaded by:
Eiz
Luna

