Multi-story office building isometric section and elevation cad drawing details dwg file
Description
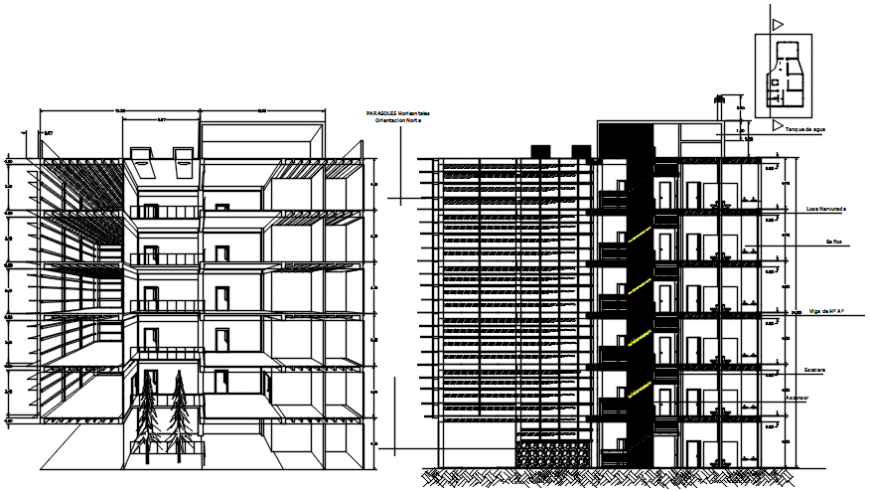
Multi-story office building isometric section and elevation cad drawing details that includes a detailed view of flooring view with indoor and outdoor doors and windows view and staircase elevation and sectional view details, balcony view with wall design, parking area and dimensions and roof or terrace view and much more of corporate building details.
Uploaded by:
Eiz
Luna

