Rcc structural units of the slab and other blocks 2d view dwg file
Description
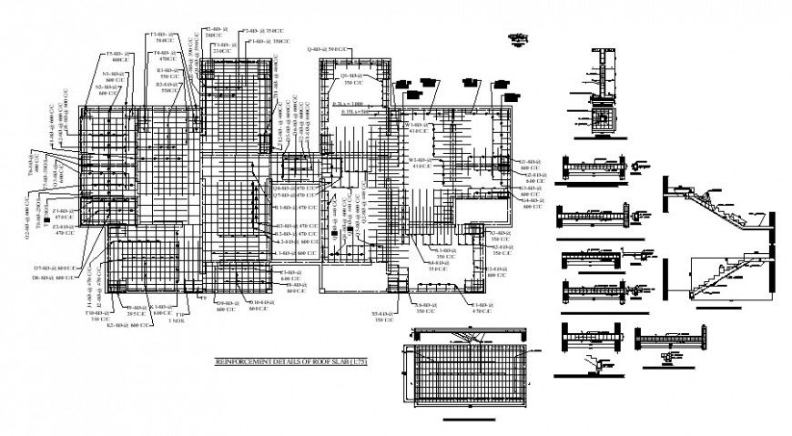
Rcc structural units of the slab and other blocks 2d view dwg file that shows reinforcement details in tension and compression zone with reinforcement bars dimension. Staircase and column beam structure with foundation footing details are also shown in the drawing.
File Type:
DWG
File Size:
435 KB
Category::
Construction
Sub Category::
Reinforced Cement Concrete Details
type:
Gold

Uploaded by:
Eiz
Luna

