Kitchen area furniture blocks drawing 2d view autocad file
Description
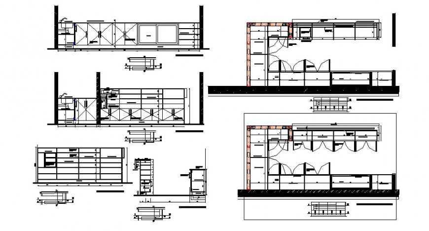
Kitchen area furniture blocks drawing 2d view autocad file that shows work plan of kitchen area furniture with different sides of kitchen area elevation. Dimension and kitchen automation furniture blocks details are also shown in drawing.

Uploaded by:
Eiz
Luna

