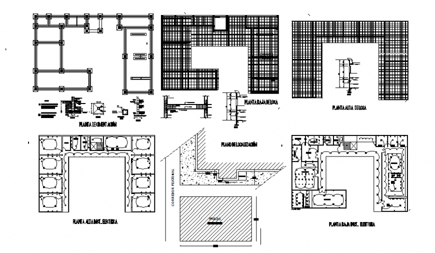
Column and wall detail view of construction in auto cad file
Description
Column and wall detail view of construction in auto cad file plan include detail of area distribution and wall and column position view with column distance of two column and sectional column view.

Uploaded by:
Eiz
Luna

