Housing blocks detail 2d view floor plan AutoCAD file
Description
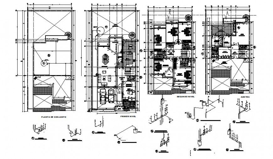
Housing blocks detail 2d view floor plan AutoCAD file that shows work plan of the house along with furniture layout plan details and floor level details. Parking space details dimension hidden line details are also shown in the drawing.
Uploaded by:
Eiz
Luna

