Washing area with toilet section view in auto cad file
Description
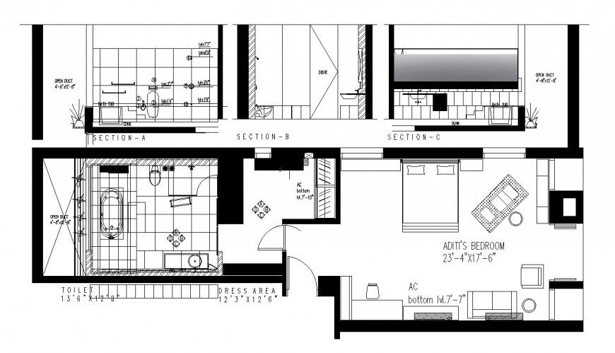
Washing area with toilet section view in auto cad file include detail of wall and wall support with area distribution bathing area with wash basin and bath tub water closet and door view in sectional view.
File Type:
DWG
File Size:
303 KB
Category::
Interior Design
Sub Category::
Bathroom Interior Design
type:
Gold
Uploaded by:
Eiz
Luna

