Floor plan of administration building in auto cad file
Description
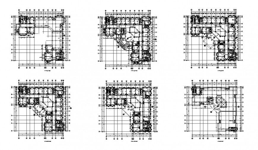
Floor plan of administration building in auto cad file plan include detail of area distribution and wall with door position and admin area and washing area stair up down view and important dimension in view.
Uploaded by:
Eiz
Luna

