Housing elevation along with electrical installation details in autocad
Description
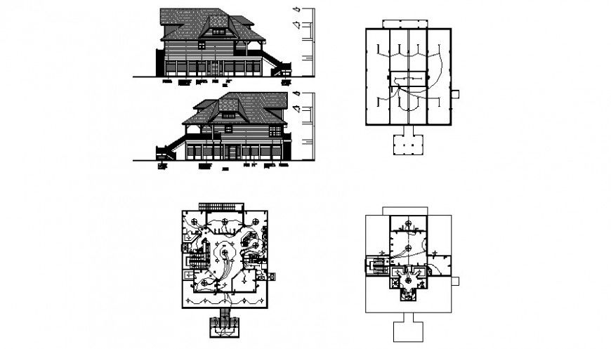
Housing elevation along with electrical installation details in autocad that shows the frontal elevation of the house along with work plan of the house and electrical installation layout plan details. Dimension and leveling details are also shown in the drawing.
Uploaded by:
Eiz
Luna

