Bar with dance floor architectural floor plan in auto cad
Description
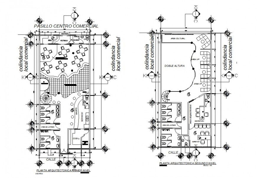
Bar with dance floor architectural floor plan in auto cad plan include detail of main entrance washing area kitchen bar dance floor area and dining area and second floor for VIP person admin and washing area in plan.
Uploaded by:
Eiz
Luna

