Housing apartment drawings detail 2d view work plan autocad file
Description
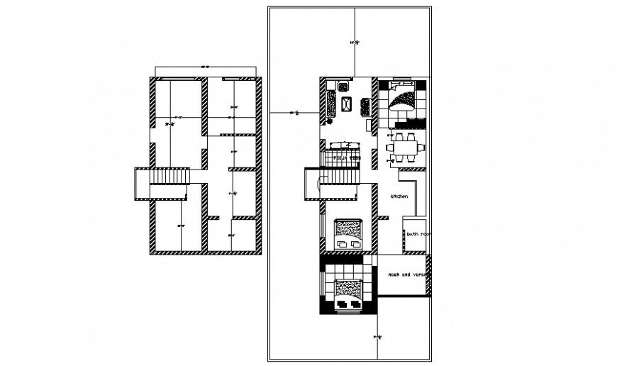
Housing apartment drawings details 2d view work plan autocad file that shows work plan of house with furniture layout plan details and door window blocks details along with room details of bedroom kitchen and dining area drawings room.
Uploaded by:
Eiz
Luna
