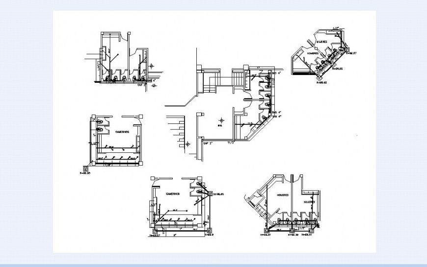
PVC water line of washing area and bathroom for sport Centre in auto cad
Description
PVC water line of washing area and bathroom for sport Centre in auto cad plan includes detail of wall and area distribution washing area with PVC water line view water line control and joint position with necessary detail and dimension.
File Type:
DWG
File Size:
2.2 MB
Category::
Interior Design
Sub Category::
Bathroom Interior Design
type:
Gold

Uploaded by:
Eiz
Luna

