Building units drawings along with electrical installation details in autocad t
Description
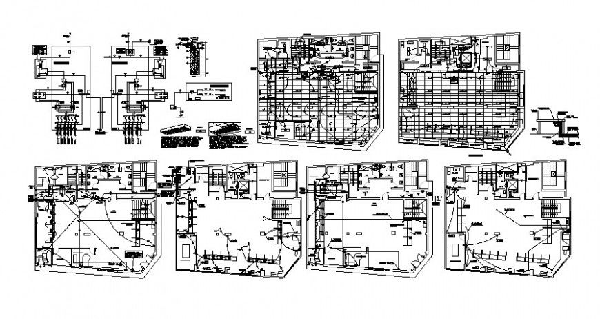
Building units drawings along with electrical installation details in autocad that shows a work plan of building units along with electrical installation layout plan and circuit flow diagram details. Fuse circuits details along with Floor level and earthing wiring details are also shown in the drawing.
Uploaded by:
Eiz
Luna

