Shade details drawings plan and elevation 2d view autocad software file
Description
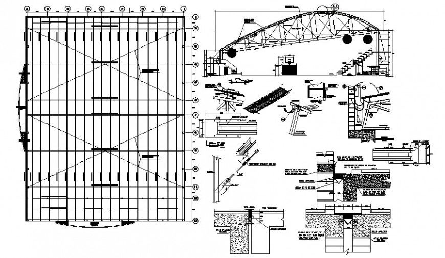
Shade details drawings plan and elevation 2d view autocad software file that shows a work plan of roofing shade structure along with staircase details and struts details. Dimension and hidden line details along with welded and bolted joints and connections details are also shown in the drawing.
File Type:
DWG
File Size:
152 KB
Category::
Construction
Sub Category::
Construction Detail Drawings
type:
Gold
Uploaded by:
Eiz
Luna

