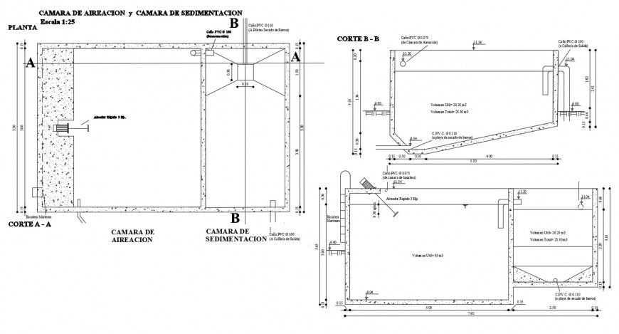
Air craft camera and sedimentation plan construction view in auto cad
Description
Air craft camera and sedimentation plan construction view in auto cad plan include area of wall with construction view with Rapid Aerator 3 Hp mounting area and wall support area with necessary dimension.
File Type:
DWG
File Size:
41 KB
Category::
Construction
Sub Category::
Construction Detail Drawings
type:
Gold

Uploaded by:
Eiz
Luna

