Stainless tank details plan and section autocad file
Description
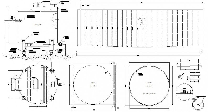
Stainless tank details plan and section autocad file that shows dimension details and naming texts details. Top elevation of tank along with wheel base supporters details and dimension hidden line details.
Uploaded by:
Eiz
Luna

