Kitchen dining area drawings details plan elevation autocad file
Description
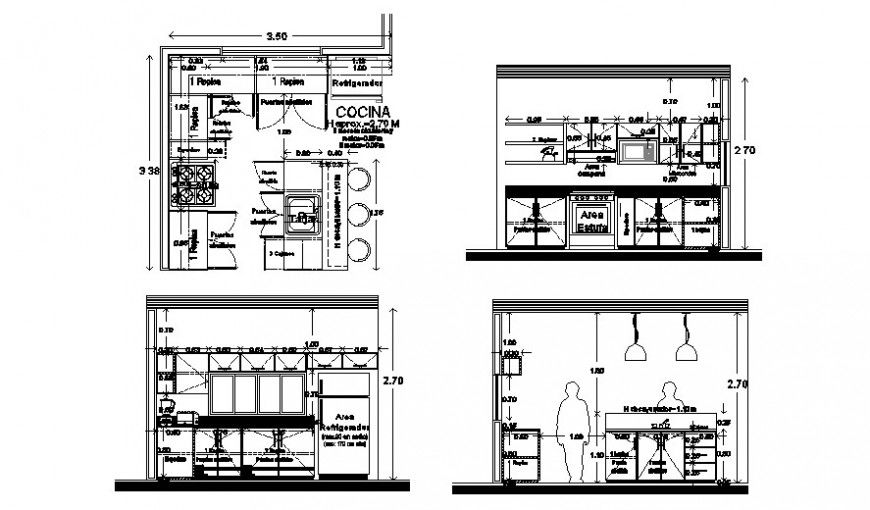
Kitchen dining area drawings details plan elevation autocad file that shows kitchen area plan details along with kitchen automation and furniture blocks details with dimension details. Kitchen elevation details are also shown in drawing.
File Type:
DWG
File Size:
221 KB
Category::
Construction
Sub Category::
Kitchen And Remodeling Details
type:
Gold
Uploaded by:
Eiz
Luna
