Metal support with column detail structure view in auto cad software
Description
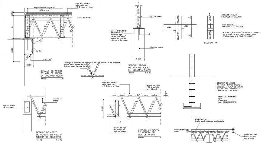
Metal support with column detail structure view in auto cad software elevation include detail of area of frame vertical and horizontal and angular support with column and wall height detail with necessary dimension.
Uploaded by:
Eiz
Luna

