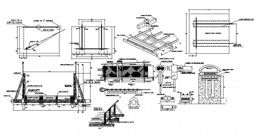
Drawings details of structural units 2d view autocad software file
Description
Drawings details of structural units 2d view autocad software file that shows iometric view of structure with concrete masonary details and dimension hidden line details. struts and concrtee work details are also shown shown in drawing.
Uploaded by:
Eiz
Luna

