Water tank plumbing blocks construction detail drawing in autocad
Description
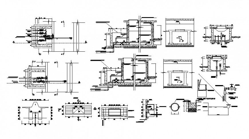
Water tank plumbing blocks construction detail drawing in autocad that shows overhead watertank details along with tank capacity and dimension details. Pipe system with valve and motor details are alos shown in drawing.
Uploaded by:
Eiz
Luna

