Sanitary public toilet area drawings 2d view autocad software file
Description
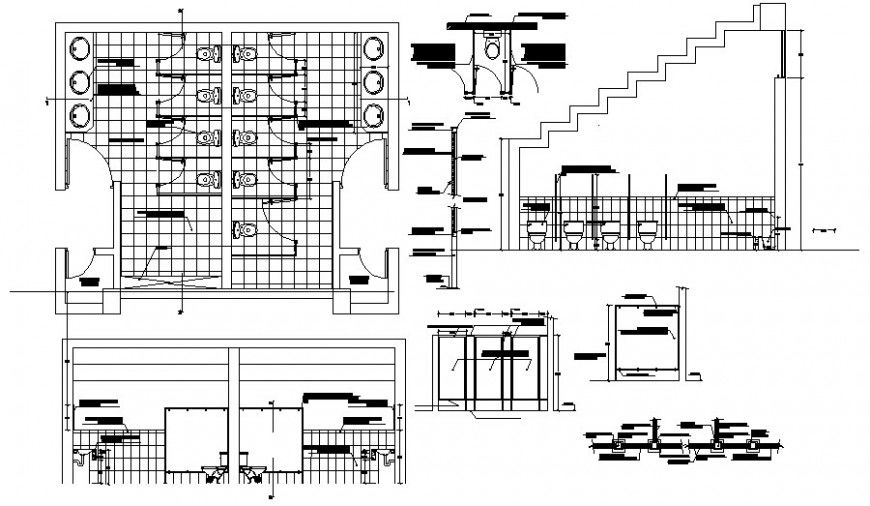
Sanitary public toilet area drawings 2d view autocad software file that shows the floor plan of sanitary toilet area along with sectional details of the toilet. Various sanitary units details of water closet washbasin are also shown in the drawing.
File Type:
DWG
File Size:
607 KB
Category::
Interior Design
Sub Category::
Bathroom Interior Design
type:
Gold
Uploaded by:
Eiz
Luna

