Sports academy playground area drawings details in autocad file
Description
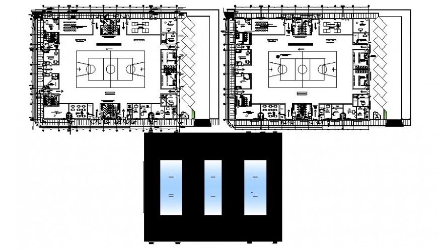
Sports academy playground area drawings details in autocad file that shows sports ground details of football and tennis court ground along with ground markings and signs details. Parking space details and other details of sports building are also shown in the drawing.
Uploaded by:
Eiz
Luna

