Housing elevation and work plan 2d view drawings autocad file
Description
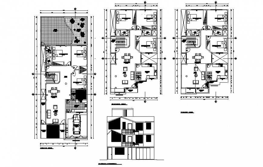
Housing elevation and work plan 2d view drawings autocad file that shows work plan of housing units along with furniture blocks details with dimension details and front ekevation and rooms details of kictchen area drawings room area bedroom sanitray toiket details.
Uploaded by:
Eiz
Luna

