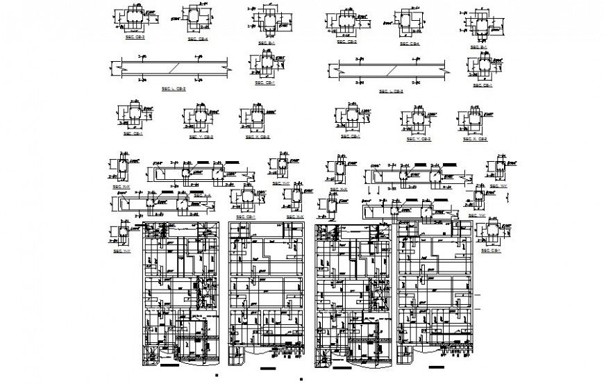
Column and beam connection structural blocks details drawings autocad file
Description
Column and beam connection structural blocks details drawings autocad file that shows reinforcement details in tension and compression zone along with main and distribution hook up and bent up bars details. the structural blocks is a reinforced concrete cement (RCC) structure.
Uploaded by:
Eiz
Luna

