Sanitary toilet area plan and cutout section in autocad
Description
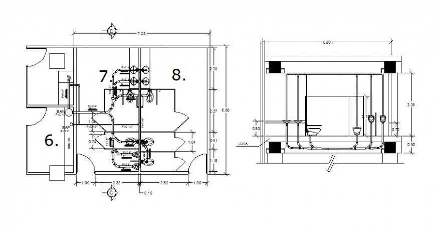
Sanitary toilet area plan and cutout section in autocad that shows work plan of sanitary toilet area along with sanitary blocs details of the watercloset washbasin and section line details. dimension and sectional details of toilet area details are also shown in the drawing.
File Type:
DWG
File Size:
95 KB
Category::
Interior Design
Sub Category::
Bathroom Interior Design
type:
Gold
Uploaded by:
Eiz
Luna

