Building units drawings plan along with landscaping details in AutoCAD file
Description
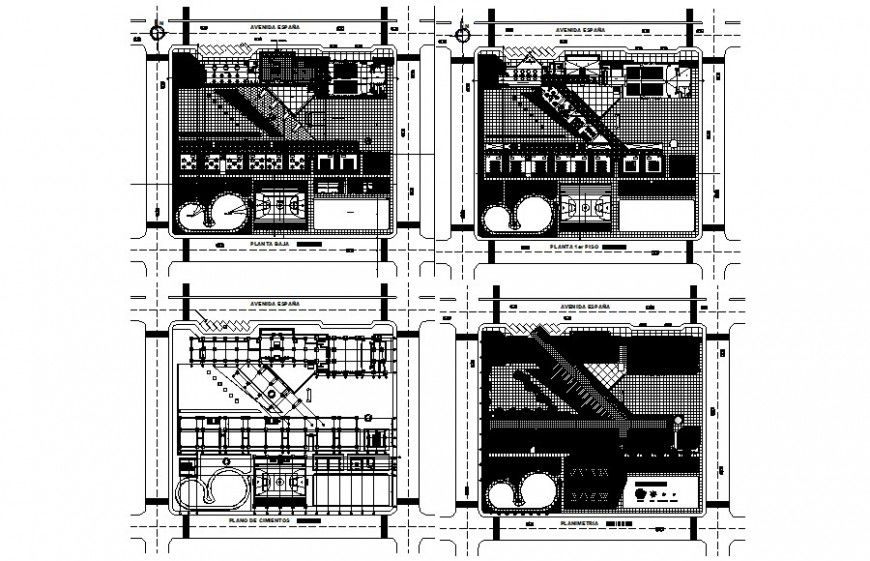
Building units drawings plan along with landscaping details in AutoCAD file that shows work plan drawings of building units along with landscaping details and boundary compound details. Parking space and 30-degree parking system along with road network details are also shown in the drawing.
Uploaded by:
Eiz
Luna

