Building apartment drawings details plan elevation and section dwg file
Description
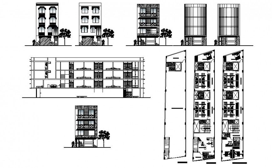
Building apartment drawings details plan elevation and section dwg file that shows work plan details of building blocks along with floor level details. Building different sides elevation and sectional details along with furniture blocks details are also shown in drawings.
Uploaded by:
Eiz
Luna

