Commercial building floor plan with terrace in auto cad file
Description
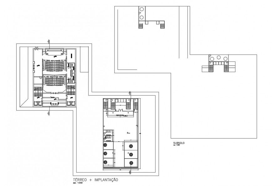
Commercial building floor plan with terrace in auto cad file plan include detail of wall area distribution and commercial area office washing area and door position with necessary dimension and terrace plan.
Uploaded by:
Eiz
Luna

