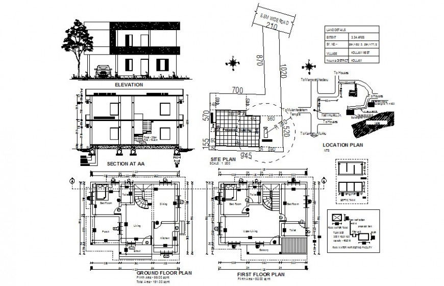
Housing drawings details plan elevation and section dwg file
Description
Housing drawings details plan elevation and section dwg file that shows house plan details along with floor level details and house frontal elevation and sectional details of the house along with dimension and hidden line details. Section line and specification details are also shown in the drawing.
Uploaded by:
Eiz
Luna
