LOGIN
HOME
CATEGORIES
UPLOAD FILE
PRICING
HOUSE PLAN
ABOUT US
CONTACT US
School Design
Home
Categories
Architecture
School & Hostel
School Design
Uploaded by:
john
kelly
View Profile
View Profile
Description
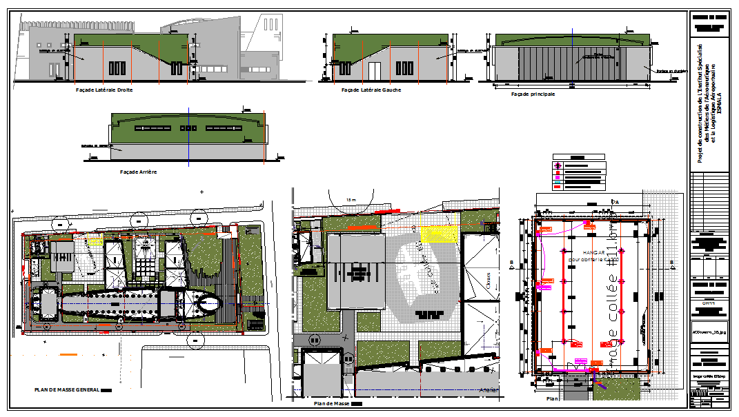
School Design DWG File, The values and attitudes which underlie modern design schools differ among the different design schools. School Design Detail, School Design Download file.
File Type:
DWG
File Size:
2.4 MB
Category::
Architecture
Sub Category::
School & Hostel
type:
Gold
Uploaded by:
john
kelly
View Profile
Download
Add to libary
find Latest
Related
Files