Bus transport terminal in auto cad file
Description
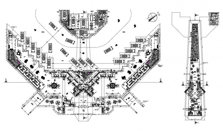
Bus transport terminal in auto cad file its include detail of area distribution main entrance hall office and washing area information Centre deposit and washing area and commercial shop in both side drinking water kitchen and dining area and view of bus terminal with mini bus station and important dimension.
File Type:
DWG
File Size:
838 KB
Category::
Dwg Cad Blocks
Sub Category::
Transportation Dwg Blocks
type:
Gold

Uploaded by:
Eiz
Luna

