Sports play area drawing 2d view drawing autocad software file
Description
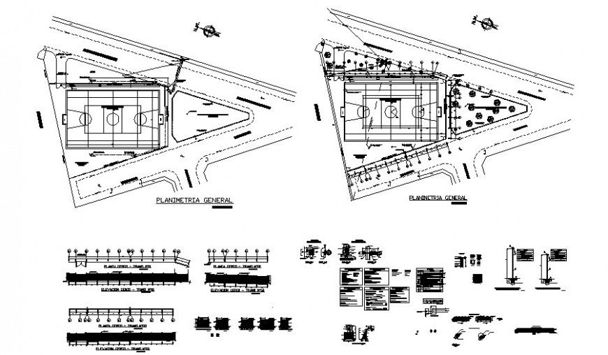
Sports play area drawing 2d view drawing autocad software file work plan of sports play area along with sports ground markings and signs details. Road network dimension and hidden line details along with landscaping details and ground measurement details are also described in drawings.
Uploaded by:
Eiz
Luna

