Housing apartment drawings 2d view plan autocad file
Description
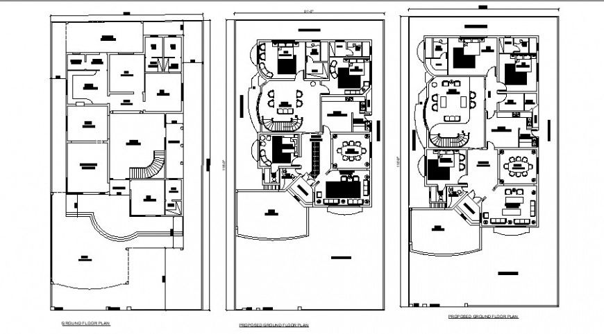
Housing apartment drawings 2d view plan autocad file that shows furniture layout details in house with room interior dimension and floor level details. Dimension and rooms details are also shown in the drawing.
Uploaded by:
Eiz
Luna

