Housing drawings of apartments 2d view autocad layout file
Description
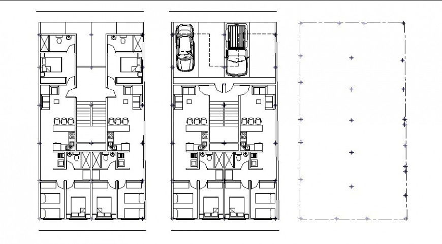
Housing drawings of apartments 2d view autocad layout file that shows floor plan of house with furniture layout plan details and rooms details. The room details includes details of kitchen area bedroom area drawing room area and other details.
Uploaded by:
Eiz
Luna

