Residential house along with office plan details in autocad
Description
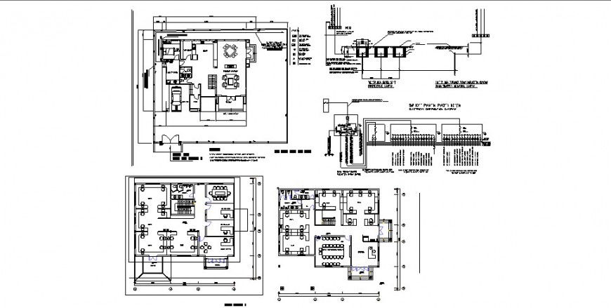
Residential house along with office plan details in autocad that shows furniture layut plan details in building with residential house rooms and office building details. Floor level details and electrical circuits drawings details are also included in drawing.
Uploaded by:
Eiz
Luna
