Three stories residential bungalow drawings 2d view autocad software file
Description
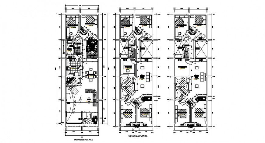
Three stories residential bungalow drawings 2d view autocad software file which shows all details of housing units with furniture layout plan details and electrical installation details. Floor level details with dimension and hidden line details are also shown in the drawing.
Uploaded by:
Eiz
Luna
