Housing drawing with electrical installation details in autocad
Description
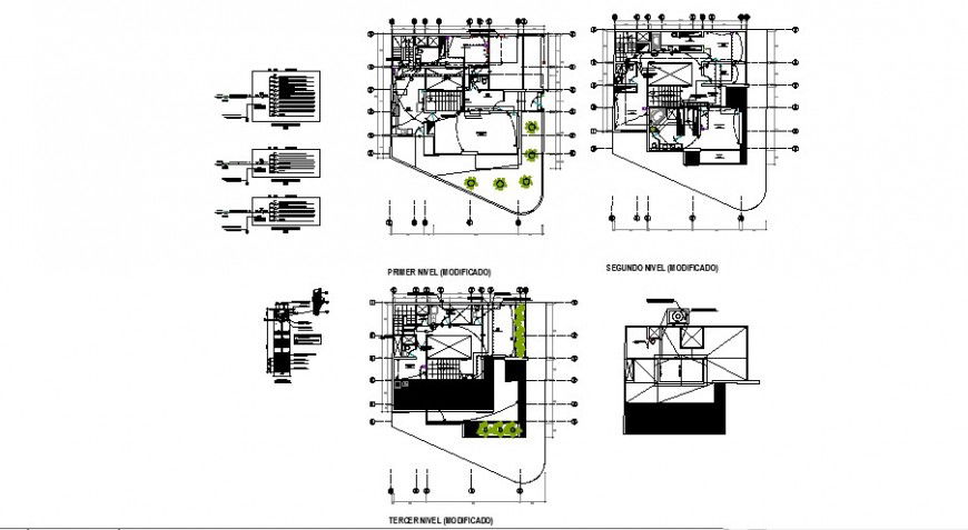
Housing drawing with electrical installation details in autocad that shows work plan of house with dimensionn and hidden line details alomg with electrical installation layout plan details and other details in house.
Uploaded by:
Eiz
Luna

